


FOR SALE BY ONLINE AUCTION 13TH MAY 2026:
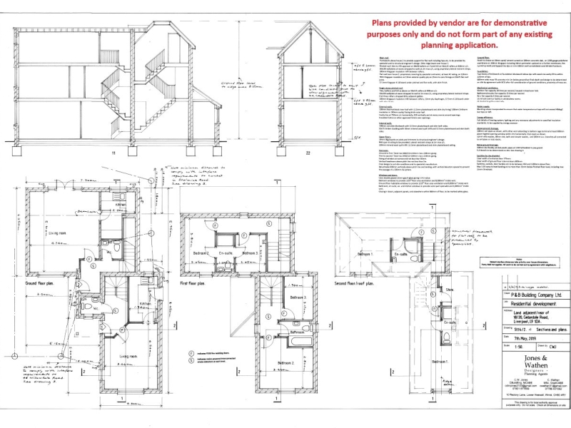
This is an L-shaped plot of land next to and to the rear of 18/20 Cedardale Road. Subject to necessary consents, there is development potential to erect two three-bedroom semi-detached houses with garages and gardens. The plot is roughly 500m² and includes the containers on site.
NB: Plans provided by vendor are for demonstrative purposes only and do not form part of any existing planning application.
ACCOMMODATION
Land of circa 500m² including two containers.
Site not inspected by agent.
LOCATION
Cedardale Road is off Rice Lane, with easy access to Rice Lane and Walton train stations. Excellent location for families, with Sainsburys supermarket, schools and green space nearby.
TENURE: Freehold
AUCTION FEES
The sale of this lot is subject to a Buyer’s Administration Fee of 1% + VAT of sale price, subject to a minimum £3000 + VAT, payable alongside the 10% deposit. The purchase of this property may include associated fees not listed here. Any additional fees will be implemented by the sellers solicitors and confirmed in the legal pack which can be downloaded for free from our website prior to the auction.