

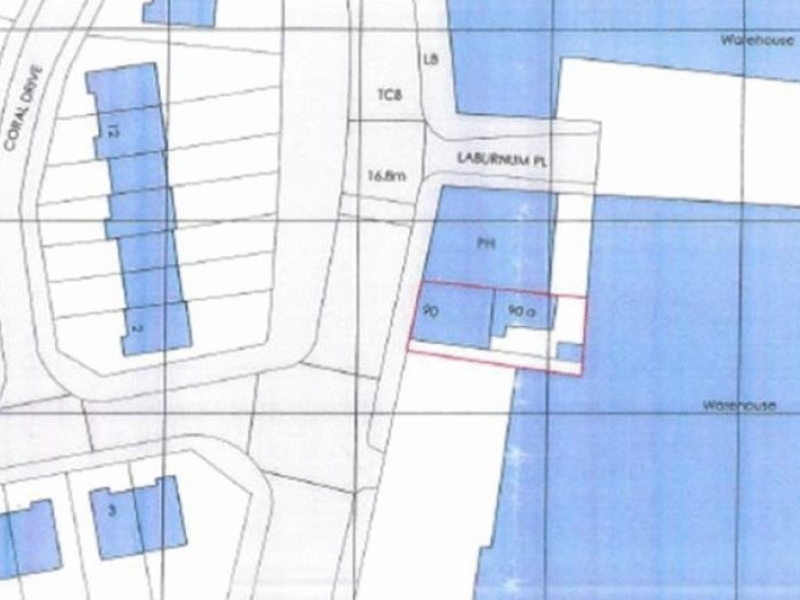
For sale by auction 13th December 2017WHY BUYThee/four Bedroom HouseDevelopment OpportunityHuge Potential YieldPotential To Add ValueDESCRIPTIONThe property itself is a three/four bedroomed house in need of redevelopment throughout. One option for any new owner would simply be to renovate the current property and rent out once works are completed. The likely rent for the finished article would be around £650pcm, so there is the opportunity for a very attractive yield by means of refurbishment.To the ground floor there is a commercial unit which is on offer separately in this auction. Pre-application advice has been sought via Sefton Council, application No DC/2017/00734 to convert and extend the property to provide nine self-contained apartments. Potential purchasers are free to make further enquiries to the council planning board. Plans are available for inspection in Venmores Office, Imperial Buildings, 9 Dale St, L2 2SH. If bought together, the property could offer 9 self-contained apartments perfect for resale or rental. The rental for flats in the area would be around £450pcm for a good standard one bed, so the potential annual income on the property if configured in this way would be around £48,600 – a truly staggering yield without the need to move mountains. Other developments have been granted in the immediate vicinity on the Brownfield Site (approved for 8 self-contained apartments) and the Tannery Site awaiting approval for 146 apartments and 9 houses. The ongoing improvement of the area, coupled with the local Hugh Baird College expanding to incorporate university courses (leading to student movement to the area) mean that on top of the incredible yield, there is a good chance for improvement in property values across the area in the coming years.LOCATIONSituated on Litherland Road in Bootle, located around 3.5 miles outside of the City Centre, the property is very well positioned for all local amenities such as The Strand Shopping Centre, Bootle New Strand & Bootle Oriel Road Train Stations, and the ASDA Superstore. Furthermore, regular buses to the City are abundant in the area, so investors truly would have a wide demographic of potential occupants available.ACCOMODATIONGround floor rear :- Two rooms.First floor :- Four roomsSecond floor :- Two roomsOutside :- Rear access and rear yard.
For sale by auction 13th December 2017WHY BUYThee/four Bedroom HouseDevelopment OpportunityHuge Potential YieldPotential To Add ValueDESCRIPTIONThe property itself is a three/four bedroomed house in need of redevelopment throughout. One option for any new owner would simply be to renovate the current property and rent out once works are completed. The likely rent for the finished article would be around £650pcm, so there is the opportunity for a very attractive yield by means of refurbishment.To the ground floor there is a commercial unit which is on offer separately in this auction. Pre-application advice has been sought via Sefton Council, application No DC/2017/00734 to convert and extend the property to provide nine self-contained apartments. Potential purchasers are free to make further enquiries to the council planning board. Plans are available for inspection in Venmores Office, Imperial Buildings, 9 Dale St, L2 2SH. If bought together, the property could offer 9 self-contained apartments perfect for resale or rental. The rental for flats in the area would be around £450pcm for a good standard one bed, so the potential annual income on the property if configured in this way would be around £48,600 – a truly staggering yield without the need to move mountains. Other developments have been granted in the immediate vicinity on the Brownfield Site (approved for 8 self-contained apartments) and the Tannery Site awaiting approval for 146 apartments and 9 houses. The ongoing improvement of the area, coupled with the local Hugh Baird College expanding to incorporate university courses (leading to student movement to the area) mean that on top of the incredible yield, there is a good chance for improvement in property values across the area in the coming years.LOCATIONSituated on Litherland Road in Bootle, located around 3.5 miles outside of the City Centre, the property is very well positioned for all local amenities such as The Strand Shopping Centre, Bootle New Strand & Bootle Oriel Road Train Stations, and the ASDA Superstore. Furthermore, regular buses to the City are abundant in the area, so investors truly would have a wide demographic of potential occupants available.ACCOMODATIONGround floor rear :- Two rooms.First floor :- Four roomsSecond floor :- Two roomsOutside :- Rear access and rear yard.