

WHY BUY?
Planning permission
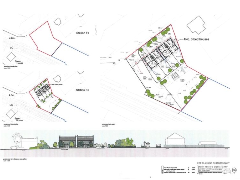
4 x Semi-detached houses
Potential further development
Large side plot
DESCRIPTION
This is a large parcel of land that has current planning permission to build 4 x three bedroom semi-detached houses next to Bescar Lane Station in Scarisbrick. Only a small section of the land will be used for the development therefore there remains potential for a further residential or commercial scheme on the remaining land, subject to obtaining all the relevant planning consents.
For any planning queries please speak with the West Lancs Planning department - current planning number 2013/0432/FUL
LOCATION
The plot is adjacent to Bescar Lane Train Station 1.5 miles from Scarisbrick and only 5 miles from Southport.