





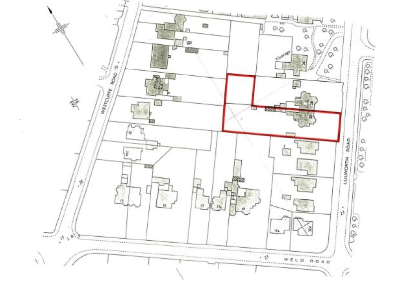
For Sale by Online Auction 19th May 2021WHY BUY?Sought After Birkdale PostcodePlanning Permission SoughtScope to Add Capital ValueSuitable for Residential or Commercial VentureDESCRIPTIONA rare investment opportunity in the affluent area of Birkdale, Southport. The Semi-detached property provides a substantial, 3 storey period build, plus basement. Currently described as derelict, it is ready for full refurbishment, along with extension in accordance with the approved planning permission. The site sits within its own grounds with established treelined boundaries on a level site. Externally the property provides character features including mustard coloured pattern window brick patterns, overall laid with red brick construction, and dual multi pitched roof elevations. The property has full planning approval, Reference No DC/2018/00695 for erection of a two-storey extension to the rear, together with the conversion to 10 self-contained supported living apartments (Use Class C2) with associated access and car parking and demolition of existing outrigger and other detached buildings. The property provides basement, ground, first and second floor accommodation with extensions.LOCATIONLulworth Road is in an enviable location in Birkdale, just off the main A565 linking Southport to Liverpool and just over a mile to the Royal Birkdale Golf Club. Southport Town Centre is only a mile away and the closest railway station is 600 yards.
ACCOMMODATION
BasementGround Floor: 198.8 m²/2,140 sq.ftFirst Floor: 201.4 m²/2,168 sq.ftSecond Floor: 90.8 m²/977 sq.ftOutside: Extensive groundsTENURELeasehold. We understand the property is held on a long leasehold interest of 999 years with a small ground rent to be confirmed, understood to be approximately up to £50 per annum.NB: Venmores have not carried out an internal inspection.
AUCTION FEES
The sale of this lot is subject to a Buyer’s Administration Fee of 1% + VAT of sale price, subject to a minimum £1250 + VAT, payable on the fall of the hammer. The purchase of this property may include associated fees not listed here. Any additional fees will be implemented by the sellers solicitors and confirmed in the legal pack which can be downloaded for free from our website prior to the auction.
For Sale by Online Auction 19th May 2021
WHY BUY?
Sought After Birkdale PostcodePlanning Permission SoughtScope to Add Capital ValueSuitable for Residential or Commercial VentureDESCRIPTIONA rare investment opportunity in the affluent area of Birkdale, Southport. The Semi-detached property provides a substantial, 3 storey period build, plus basement. Currently described as derelict, it is ready for full refurbishment, along with extension in accordance with the approved planning permission. The site sits within its own grounds with established treelined boundaries on a level site. Externally the property provides character features including mustard coloured pattern window brick patterns, overall laid with red brick construction, and dual multi pitched roof elevations. The property has full planning approval, Reference No DC/2018/00695 for erection of a two-storey extension to the rear, together with the conversion to 10 self-contained supported living apartments (Use Class C2) with associated access and car parking and demolition of existing outrigger and other detached buildings. The property provides basement, ground, first and second floor accommodation with extensions.LOCATIONLulworth Road is in an enviable location in Birkdale, just off the main A565 linking Southport to Liverpool and just over a mile to the Royal Birkdale Golf Club. Southport Town Centre is only a mile away and the closest railway station is 600 yards.
ACCOMMODATION
BasementGround Floor: 198.8 m²/2,140 sq.ftFirst Floor: 201.4 m²/2,168 sq.ftSecond Floor: 90.8 m²/977 sq.ftOutside: Extensive groundsTENURELeasehold. We understand the property is held on a long leasehold interest of 999 years with a small ground rent to be confirmed, understood to be approximately up to £50 per annum.NB: Venmores have not carried out an internal inspection.